In an elevated, sought-after location in the 17th district, this exclusive single-family home presents itself as a true unique piece: first occupancy, modern architecture, a well-thought-out room concept, and high-quality materials meet an unobstructed, breathtaking view over Vienna. The private indoor pool, spacious terrace areas, and a stylish garden create a living experience at the highest level – ideal for people who appreciate peace, comfort, and a view equally.
General key data:
Total living area: approx. 243 m²
Plot size: approx. 476 m²
Usable area: approx. 354 m²
Parking spaces: 2
Detailed room layout:
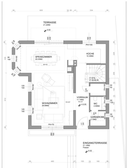
Ground floor:
Spacious living-dining room with fireplace, beautiful views, and access to the approx. 21 m² large south-facing garden terrace.
Open kitchen area with high-quality connections and tiled floor.
Guest WC and large cloakroom.
Upper floor:
2 sunny bedrooms with balcony and breathtaking views!
1 large master bedroom with a view of Kahlenberg, its own balcony, and spacious dressing room.
2 exclusive and fully equipped bathrooms.
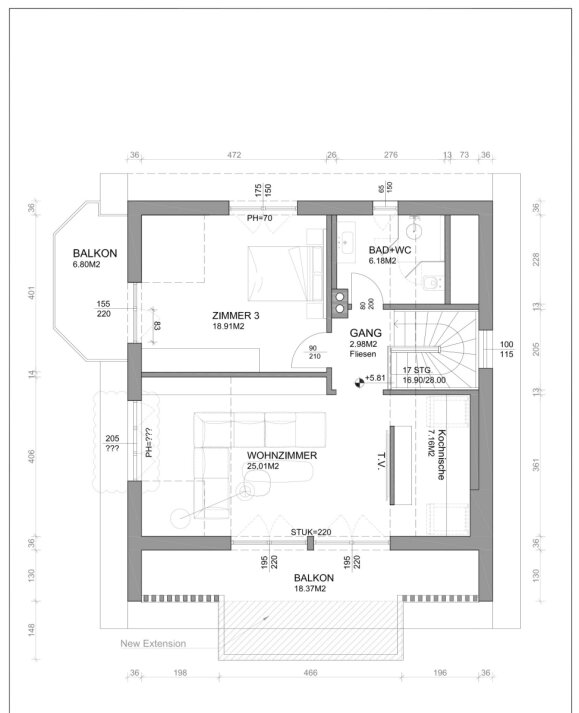
Attic:
2 large rooms with their own balconies and unobstructed distant views! Special highlight: further kitchen/bathroom connections prepared in the large attic room for exclusive fittings.
Elegant bathroom with shower and toilet.
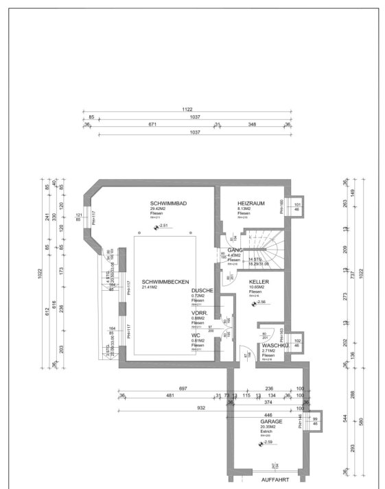
Basement:
Indoor swimming pool (approx. 21.41 m²)
Technical room/heating room
Laundry room and large storage room (approx. 20.35 m²)
Construction & building technology:
Heating & hot water: Air heat pump Vaillant flexoTHERM VWF 197/4 LW with VRC 720, also usable for pool heating
Heat distribution via underfloor heating (also switchable to cooling)
Control via room thermostats
Exterior & interior walls:
Exterior walls: Brick + 20 cm full thermal insulation
Interior walls: Brick or plasterboard on metal studs
Furnishing & materials:
Floors & stairs:
Weitzer parquet (oak lively, brushed)
Tiling in wet rooms and kitchen
Stairs: Oak tread steps, painted steel construction
Sanitary rooms & fittings:
Brands like Villeroy & Boch, Geberit, Hans Grohe, Baldocer, Emil Ceramica, Ariostea
High-quality tile formats up to 1500×1000 mm
Fittings, among others, with Hans Grohe Raindance head showers, thermostat fittings, washbasin cabinets, freestanding bathtub (V&B Architectura)
Doors & windows:
Entrance door: Josko Nevos (oak, oiled, fingerprint access)
Interior doors: DANA (model Palazzo, white)
Windows & terrace doors:
Josko Diamant 89 S (wood-aluminum, triple glazed), sun protection via external venetian blinds
Window sills outside: Aluminum, inside: artificial stone
Outdoor facilities & extras:
Terrace flooring: WPC dark brown
Paths/parking spaces: Paving stones (Kanara Fossil shaded & granite edging)
Parking spaces: 2 (including e-charging infrastructure)
Fencing: Slat fence with electric gate
Plot boundary: Double bar mesh fence
Fall protection: Stainless steel railing, black painted
Electrical & lighting installations:
Sockets, switches, and lighting outlets in all rooms
Partially indirect lighting & ceiling spots
Intercom system in the entrance area
Outdoor lighting: Aluminum wall lights in light grey
Outdoor connections for electricity and water on balcony/terrace
This modern house is ideal for families with high demands on quality, spatial comfort, and energy efficiency. The proximity to recreational areas, public transport, schools, and leisure opportunities makes the location particularly attractive.
Convince yourself and call Christoph Koch at 0650/7791559 or Maximilian Koch at 0676/4606206 for more details.
The agent acts as a double broker.
Infrastructure/distances
Health
Physician <500m
Pharmacy <1,000m
Clinic <1,000m
Medical building <500m
Children & schools
School <1,000m
Kindergarten <1,000m
University <2,000m
Secondary school <2,000m
Local supply
Supermarket <1,000m
Bakery <1,000m
Shopping centre <1,500m
Others
ATM <1,500m
Bank <1,500m
Post office <1,500m
Police <1,500m
Transport
Bus <500m
Subway <1,500m
Tram <1,000m
Train station <1,500m
Motorway junction <4,500m
Stated distance as the crow flies / source: OpenStreetMap























